|
Какой рейтинг вас больше интересует?
|
Главная /
Каталог блоговCтраница блогера Batenin Valentin Design/Записи в блоге |
|
Batenin Valentin Design
Голосов: 1 Адрес блога: http://bateninvalentindesign.blogspot.com/ Добавлен: 2016-12-26 14:50:45 блограйдером valekb |
|
Кухня. Современная классика.
2015-10-01 12:31:00 (читать в оригинале)
кухня фото

дизайн кухни. современная классика
Гостиная. Современная классика.
2015-10-01 12:29:00 (читать в оригинале)

Дизайн туалетной комнаты. Современная классика.
2015-10-01 12:25:00 (читать в оригинале)


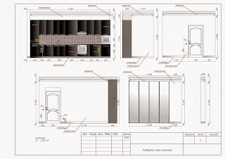
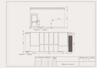
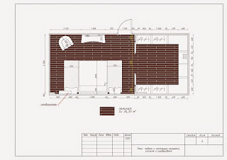
Пример дизайн-проекта квартиры-студии
2015-08-13 13:47:00 (читать в оригинале)Работа на дизайн-проектом начинается с составления технического задания. Скачать его вы можете нажав на кнопку СКАЧАТЬ
Далее приступаю к созданию 3d визуализации на которой вы можете увидеть как будет выглядеть ваш интерьер в цвете с расстановкой мебели.
Прорабатывается несколько стилевых и цветовых вариантов интерьера и согласовываются с вами. (Пример 3d визуализации ниже)















Далее начинается работа над чертежами в которых указывается:
- План размещения санитарно-технического оборудования.
- План потолков с указанием уровней и привязкой размеров.
- План размещения осветительных приборов с привязкой.
- План размещения силового и слаботочного оборудования.
- План размещения выводов для электрического оборудования, антенн.
- План-приложение к разверткам стен с декоративными элементами.
- План напольных покрытий (с указанием типа покрытия, рисунка и размера).
- План теплых полов.
- План дверных проемов.














После того, как сделаны чертежи можно приглашать бригаду ремонтников внутренней отделки и начинать подбирать материалы, заказывать мебель и т.д. Мы с вами едем в строительные магазины, я помогаю вам подобрать те материалы, которые были выбраны в дизайн-проекте (светильники, люстры, мебель, все отделочные материалы, обои, паркет и т.д.
Вместе со стандартным дизайн-проектом заказывают авторский надзор. Подробнее
Давайте начнем разработку вашего интерьера прямо сейчас. Для этого вам нужно скачать и заполнить техническое задание на разработку дизайн-проекта интерьера и прислать его мне.
СКАЧАТЬ
дизайн туалета
2015-06-27 16:43:00 (читать в оригинале)

Категория «Истории»
Взлеты Топ 5
|
| ||
|
+1120 |
1146 |
не задают вопросов о причинах желания |
|
+1071 |
1156 |
Azizti |
|
+996 |
1206 |
@дневники: ~ Mikeko ~ - Пусть все думают, что было так! :) |
|
+915 |
936 |
bigmir)net :: персональный дневник :: ISE-LADI |
|
+909 |
932 |
Robin_Bad |
Падения Топ 5
|
| ||
|
-1 |
99 |
ClericDade |
|
-2 |
103 |
radulova |
|
-5 |
13 |
_123_ |
|
-6 |
30 |
_Kicker_ |
|
-6 |
22 |
Sebastian_Valmont |
Популярные за сутки
Загрузка...
BlogRider.ru не имеет отношения к публикуемым в записях блогов материалам. Все записи
взяты из открытых общедоступных источников и являются собственностью их авторов.
взяты из открытых общедоступных источников и являются собственностью их авторов.
